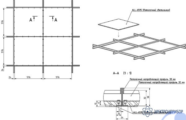
Описание панели светодиодной потолочной ALL-6595:
Светодиодные светильники имеют значительное преимущество перед обычными люминесцентными лампами, так как они не содержат ртути и других опасных веществ, а значит – не требуется выполнение как-либо особых условий по установке. Бесшумные светильники создают яркое и равномерное освещение, при этом, что немаловажно, уровень потребления энергии во время работы, по сравнению с люминесцентными лампами, в 2 раза ниже, а если сравнивать с галогеновыми – в 10 раз!
Светодиодная панель ALL-6595 включает 240 светодиодов типа SMD LED 2835. Переменное напряжение: 85-265 В. Потребляемая мощность: 48 Вт. Рабочая температура: -25°С...50°С. Цветовая температура: 6500 К (дневной свет). Индекс цветопередачи (Ra): 70-80. Угол обзора: 150°.






